Strona główna
Mapa serwisu
Zgłoś ofertę
Polityka plików cookies
Kontakt

Wyszukiwarka

Nr oferty
 
 
 
Miejscowość lub dzielnica
Ulica
Powierzchnia
-
Liczba pokoi
-
Cena
-
oferty specjalne
Notes Zgłoś ofertę Kalkulator Mapa serwisu Kontakt

Waluty

USD 3,98 EUR 4,32 CHF 4,53

Na skróty

Aktualnie poszukujemy domu dla klientów biura o następujących parametrach:

Lokalizacja: Krzyki, osiedla - Ołtaszyn, Wojszyce, Partynice

Zabudowa wolno stojąca, bliźniacza lub szeregowa.

Oferta nr: 387/2132/OLS
Rodzaj oferty
lokal biurowy ( sprzedaż )
Lokalizacja:
WROCŁAW, KLECINA
Cena:
13 200 000 PLN kalkulator
Cena za mkw:
6 046,72 PLN mkw
Powierzchnia:
2183.00 m2
Piętro:
0
Liczba pięter:
3
Ochrona:
TAK
Parking:
TAK
Opis
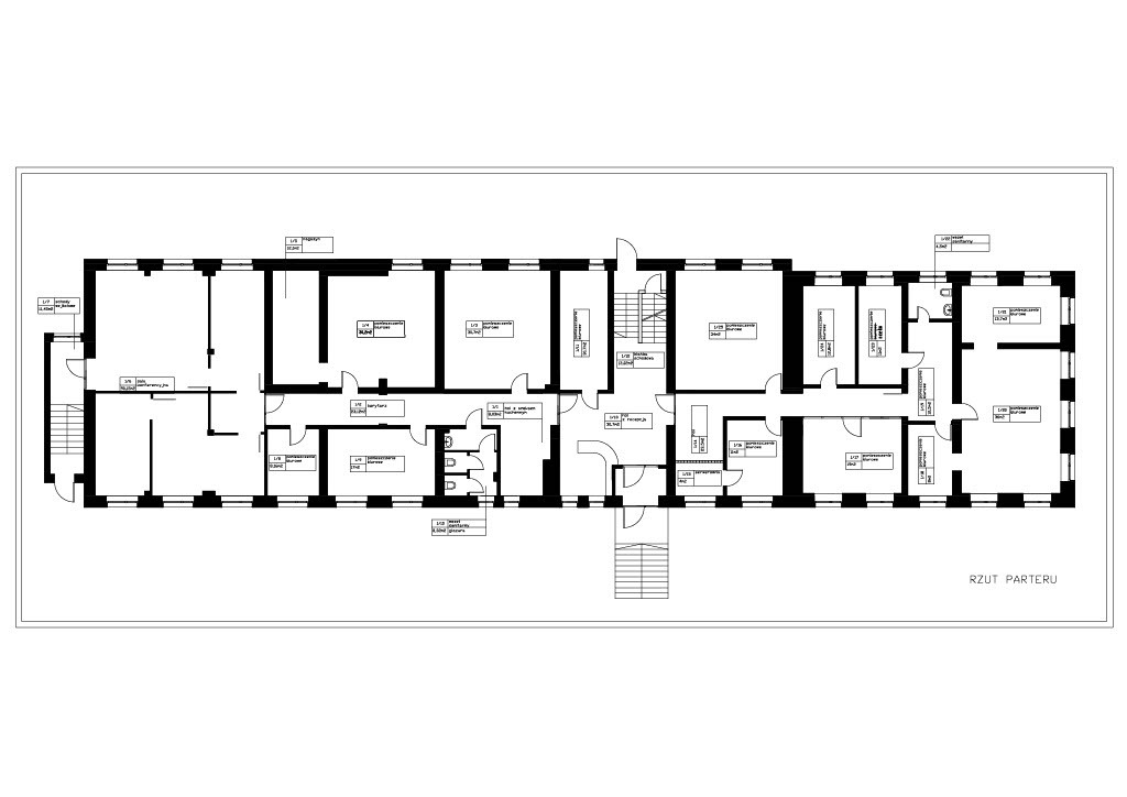
Przedmiotem oferty jest budynek z lat 60-tych o powierzchni 2.183,00m2 i powierzchni użytkowej 1.762,70m2, czterokondygnacyjny, w całości podpiwniczony, położony na działce o powierzchni 1.381 m2 we Wrocławiu przy ul. Kobierzyckiej.
Budynek kilka lat temu przeszedł gruntowny remont z wymianą wszystkich instalacji. W ubiegłym roku został wyremontowany dach.
Działka posiada pełne uzbrojenie natomiast przed budynkiem urządzony został duży parking służący dla klientów nieruchomości.
W planie zagospodarowania przestrzennego obrębu Klecina, nieruchomość położona jest w terenie oznaczonym symbolem AG 3 - obszar aktywizacji gospodarczej (obsługa firm i klientów, finanse, handel detaliczny z zakazem lokalizacji hipermarketów i hal targowych, turystyka, gastronomia, wypoczynek, kultura, administracja, apartamenty mieszkalne).


Opis stanu technicznego
Ławy fundamentowe betonowe, zbrojone, ściany piwniczne betonowe, ściany nadziemia murowane z pustaków i cegieł, stropy z płyt żelbetowych prefabrykowanych otworowych, stropodach płaski dwuspadowy, z płyt żelbetowych prefabrykowanych, kryty papa na lepiku, schody żelbetowe zabiegowe, ze stopnicami obłożonymi płytkami granitowymi.

Tynki wewnętrzne cementowo-wapienne wykończone gładzią, malowane farbami akrylowymi, częściowo oblicowane płytkami, tynki zewnętrzne strukturalne cienkowarstwowe, ocieplone styropianem, z cokołem cofniętym, posadzki betonowe i lastrykowe (piwnice), w pomieszczeniach sanitarno-socjalnych i w części pokoi z płytek ceramicznych (gres i z kamieni naturalnych), w ciągach komunikacyjnych z płytek kamiennych (granitowych i z piaskowca), w pokojach biurowych z wykładzin dywanowych, z płytek ceramicznych i z kamieni naturalnych oraz w części parkietowe, stolarka okienna z profili PCV z żaluzjami, drzwi zewnętrzne z profili Alu/PCV, wewnętrzne płytowe typu PORTA.

Wyposażenie wewnętrzne
- instalacja elektryczna (oświetlenia, gniazd i siły),
- wodno- kanalizacyjna, telefoniczna,
- instalacja c.o. gazowa (grzejniki konwektorowe), kocioł gazowy Buderus Logano GE434,
- instalacja komputerowa, monitoringu,
- wentylacja i w części klimatyzacja,
- panele fotowoltaiczne na płycie dachowej o mocy 34,78 kWp, zamontowane 3 lata temu,
- instalacja światłowodowa Orange i UPC.

Ze względu na bliskość AOW jak również świetnie rozwiniętą komunikację ze wszystkimi częściami Wrocławia, nieruchomość nadaje się na każdy rodzaj biznesu.

Zapraszam na prezentację


Cena 13.200.000,00 PLN
Sprzedaż zwolniona z podatku VAT (chyba że obie strony zgodnie zrezygnują ze zwolnienia) oraz podatku pcc.

Wyłączny pośrednik prowadzący Agnieszka Chrobak
nr tel. 605 042 579

Kontakt
Agnieszka Chrobak
Nr licencji pośrednika odpowiedzialnego zawodowo: 4265
605 04 25 79
agnieszka@arcadia-nieruchomosci.pl
7750862
 
Arcadia Agnieszka Chrobak
ul. Pretficza 21 lok. B 3
53-328 Wrocław
tel.: 605 04 25 79
email: arcadia@arcadia-nieruchomosci.pl
Pytanie w sprawie oferty
Imię i Nazwisko 
Telefon 
E-mail 
Treść zapytania 

Wyrażam zgodę na przetwarzanie moich danych osobowych przez firmę Arcadia Agnieszka Chrobak dla celów związanych z działalnością pośrednictwa w obrocie nieruchomościami, jednocześnie potwierdzam, iż zostałem poinformowany o tym, iż będę posiadać dostęp do treści swoich danych do ich edycji lub usunięcia.
© 2025 Arcadia Agnieszka Chrobak. Wszystkie prawa zastrzeżone.
asaricrm.com - programy dla biur nieruchomości
Pole stopki